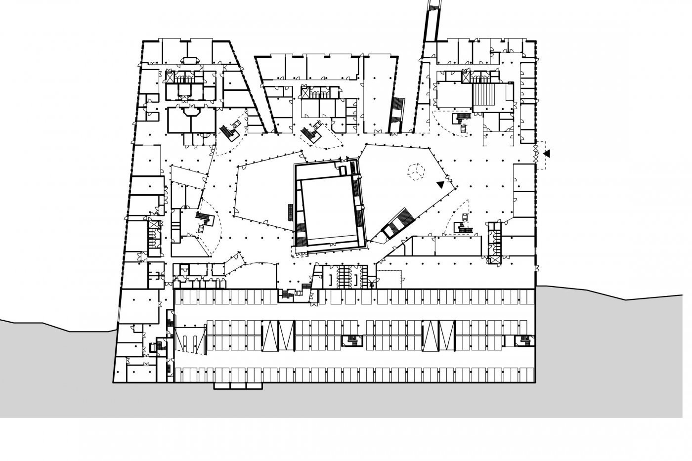
Multifunctionele zaal
In het hart van het complex bevindt zich een multifunctionele zaal die kan worden gebruikt voor gymlessen, theatervoorstellingen, lezingen en manifestaties
Het Arcus College bundelde een groot deel van zijn ROC-onderwijs in een nieuwbouw op een locatie buiten het centrum van Heerlen. Gelegen in een landelijke omgeving, vlakbij het Sintermeerten College, de Hogeschool Zuyd en de Open Universiteit. In het ontwerp moesten de verschillende afdelingen een eigen identiteit krijgen en moest het gebouw krimp en groei in studentenaantallen intern kunnen opvangen.




De bouwlocatie ligt op een helling met uitzicht op het kenmerkende Limburgse landschap. Dit bood de mogelijkheid een gebouwcomplex te maken dat deels in de helling ligt. Bovengronds, op het niveau van de Valkenburgerweg, staan in een campus-opstelling zes kleinschalige gebouwen rondom een grote patio. Ondergronds liggen de parkeergarage en de gemeenschappelijke onderwijsruimten die als communicerende vaten de gewenste krimp en groei mogelijk maken. Waar het gebouw uit het talud tevoorschijn komt zijn grote vensters geplaatst die voor daglicht zorgen en uitzicht geven op het landschap.




Na de sluiting van de steenkoolmijnen in Zuid-Limburg liepen de ondergrondse mijngangen vol met water, dat vanaf dat moment op natuurlijke wijze door de aarde verwarmd wordt. Sinds 2008 gebruikt de gemeente Heerlen deze duurzame geothermische bron voor het verwarmen en koelen van woningen, kantoren en andere gebouwen. In Heerlen is het Arcus College het eerste gebouw met een temperatuurregeling op basis van mijnwater: tijdens koude dagen zorgt een installatie voor de verwarming, op warme dagen voor lagere temperaturen. Er is gekozen voor betonkernactivering: in de kern van de vloeren zijn watervoerende leidingen aangebracht die de vloeren van de gebouwen op een constante temperatuur houden.




In het hart van het complex bevindt zich een multifunctionele zaal die kan worden gebruikt voor gymlessen, theatervoorstellingen, lezingen en manifestaties
Vanaf de entree aan de Valkenburgerstraat kent het terrein een hoogteverschil van 4 meter. Dit bood de mogelijkheid om de parkeergarage in een talud op te nemen.
#> GENERAL MESSAGES
#> DATABASE
Querycount: 90
Queries:
* SET character_set_results = 'utf8', character_set_client = 'utf8', character_set_connection = 'utf8', character_set_database = 'utf8', character_set_server = 'utf8'
* SELECT l.`tag` AS `_tag`, l.`name` AS `_name`, l.`dutch` AS `_dutch`, l.`enabled` AS `_enabled`, l.`order` AS `_order` FROM `languages` AS l WHERE `enabled` = 1 ORDER BY l.`order` ASC
* SELECT d.`hostname` AS `_hostname`, d.`lang` AS `_lang`, d.`siteid` AS `_siteid`, d.`locale` AS `_locale`, d.`UAcode` AS `_UAcode`, d.`title` AS `_title`, d.`enabled` AS `_enabled`, d.`default` AS `_default`, d.`priority` AS `_priority`, d.`subroot` AS `_subroot` FROM `domains` AS d WHERE `siteid` <> 0 AND (`default` = 1 OR `enabled` = 1) ORDER BY `priority`, `hostname` ASC
* SELECT s.`id` AS `_id`, s.`name` AS `_name`, s.`organisation` AS `_organisation`, s.`southwest` AS `_southwest`, s.`northeast` AS `_northeast`, s.`phone` AS `_phone`, s.`theme` AS `_theme` FROM `sites` AS s WHERE `id` = 1 LIMIT 1
* INSERT INTO `sessions` (`checkstring`,`startdate`,`iplocked`,`persistent`,`destroyed`) VALUES ("RLwgypjtiGIn7e2nIcDT0CFO6l4kwFXXH4Pge9me",NOW(),0,0,0)
* SELECT s.`id` AS `_id`, s.`userid` AS `_userid`, s.`checkstring` AS `_checkstring`, s.`startdate` AS `_startdate_str`, s.`expiredate` AS `_expiredate_str`, s.`lastaccess` AS `_lastaccess_str`, s.`ip` AS `_ip`, s.`iplocked` AS `_iplocked`, s.`persistent` AS `_persistent`, s.`browser` AS `_browser`, s.`hits` AS `_hits`, s.`destroyed` AS `_destroyed`, s.`data` AS `_data` FROM `sessions` AS s WHERE `id` = 96372 LIMIT 1
* SELECT t.`id` FROM `tree` AS t INNER JOIN `tree_nodenames` AS n ON (n.`nodeid` = t.`id` AND n.`lang` = "nl") WHERE t.`parentid` IS NULL AND (0=1 OR t.`siteid` = 1 OR t.`siteid` IS NULL) AND n.`name` = "projecten"
* SELECT t.`id` AS `_id`, t.`siteid` AS `_siteid`, t.`parentid` AS `_parentid`, t.`targetid` AS `_targetid`, t.`depth` AS `_depth`, t.`type` AS `_type`, t.`order` AS `_order`, t.`inmenu` AS `_inmenu`, t.`modified` AS `_modified_str` FROM `tree` AS t WHERE `id` = 20 AND (t.`siteid` = 1 OR t.`siteid` IS NULL) LIMIT 1
* SELECT t.`nodeid` AS `_nodeid`, t.`lang` AS `_lang`, t.`name` AS `_name`, t.`link` AS `_link`, t.`url` AS `_url` FROM `tree_content` AS t WHERE `nodeid` = 20 AND `lang` = "nl" LIMIT 1
* SELECT t.`id` FROM `tree` AS t INNER JOIN `tree_nodenames` AS n ON (n.`nodeid` = t.`id` AND n.`lang` = "nl") WHERE t.`parentid` = 20 AND (0=1 OR t.`siteid` = 1 OR t.`siteid` IS NULL) AND n.`name` = "13-arcus-college"
* ABBR: SELECT p.`id` AS `_id`, p.`siteid` AS `_siteid`, p.`imageid` AS `_imageid`, p.`fileid` AS `_fileid`, p.`highlighted` AS `_highlighted`, p.`class` AS `_class`, p.`client` AS `_client`, p.`design_from` AS `_design_from_str`, p.`design_until` AS `_design_until_str`, p.`built_from` AS `_built_from_str`, p.`built_until` AS `_built_until_str`, p.`date_dsp_depth` AS `_date_dsp_depth`, p.`area` AS `_area`, p.`area_new` AS `_area_new`, p.`area_renovated` AS `_area_renovated`, p.`address` AS `_address`, p.`city` AS `_city`, p.`countrytag` AS `_countrytag`, p.`autolatlong` AS `_autolatlong`, p.`latlong` AS `_latlong`, p.`lat` AS `_lat`, p.`long` AS `_long`, p.`facebook_url` AS `_facebook_url`, p.`website_url` AS `_website_url`, p.`vimeo_url` AS `_vimeo_url`, p.`panorama` AS `_panorama`, p.`pubdate` AS `_pubdate_str`, p.`expiredate` AS `_expiredate_str`, p.`modified` AS `_modifi...
* SELECT p.`projectid` AS `_projectid`, p.`fileid` AS `_fileid`, p.`itl_facebook_url` AS `_itl_facebook_url`, p.`itl_website_url` AS `_itl_website_url`, p.`area_custom_label` AS `_area_custom_label`, p.`lang` AS `_lang`, p.`name` AS `_name`, p.`title` AS `_title`, p.`subtitle` AS `_subtitle`, p.`slug` AS `_slug`, p.`description` AS `_description`, p.`content_html` AS `_content_html`, p.`content_src` AS `_content_src` FROM `project_content` AS p WHERE `projectid` = 13 AND `lang` = "nl" LIMIT 1
* SELECT `tagid`,`score` FROM `project_x_tags` WHERE `projectid` = 13 ORDER BY `score` DESC
* SELECT t.`id` AS `_id`, t.`groupid` AS `_groupid`, t.`siteid` AS `_siteid`, t.`relevance` AS `_relevance`, t.`modified` AS `_modified_str` FROM `tags` AS t WHERE `id` IN (165,121,156,111,110,107,76,48,41,28)
* SELECT count(*) FROM `newsitems` AS `n`INNER JOIN `newsitem_content` AS c ON (n.`id` = c.`newsitemid` AND `lang` = "nl") INNER JOIN `news_x_projects` AS nxp ON (n.`id` = nxp.`newsid` AND nxp.`projectid` = 13) WHERE c.`title` <> "" AND n.`pubdate` < "2026-03-11 12:57:07"
* SELECT n.`id` AS `_id`, n.`siteid` AS `_siteid`, n.`source` AS `_source`, n.`type` AS `_type`, n.`imageid` AS `_imageid`, n.`video` AS `_video`, n.`date` AS `_date_str`, n.`time` AS `_time_str`, n.`authorid` AS `_authorid`, n.`pubdate` AS `_pubdate_str`, n.`modified` AS `_modified_str` FROM `newsitems` AS n INNER JOIN `newsitem_content` AS c ON (n.`id` = c.`newsitemid` AND `lang` = "nl") INNER JOIN `news_x_projects` AS nxp ON (n.`id` = nxp.`newsid` AND nxp.`projectid` = 13) WHERE c.`title` <> "" AND n.`pubdate` < "2026-03-11 12:57:07" ORDER BY n.`pubdate` ASC LIMIT 0,5
* SELECT newsitemid AS `id`, SUM(CASE WHEN `tagid` = 165 THEN LEAST(357,`normalised`) WHEN `tagid` = 121 THEN LEAST(357,`normalised`) WHEN `tagid` = 156 THEN LEAST(36,`normalised`) WHEN `tagid` = 111 THEN LEAST(36,`normalised`) WHEN `tagid` = 110 THEN LEAST(36,`normalised`) WHEN `tagid` = 107 THEN LEAST(36,`normalised`) WHEN `tagid` = 76 THEN LEAST(36,`normalised`) WHEN `tagid` = 48 THEN LEAST(36,`normalised`) WHEN `tagid` = 41 THEN LEAST(36,`normalised`) WHEN `tagid` = 28 THEN LEAST(36,`normalised`) ELSE 0 END) AS `match` FROM `newsitem_x_tags` WHERE `tagid` IN (165,121,156,111,110,107,76,48,41,28) AND `newsitemid` IN (SELECT n.`id` FROM `newsitems` AS n INNER JOIN `newsitem_content` AS c ON (n.`id` = c.`newsitemid` AND `lang` = "nl") WHERE c.`title` <> "" AND n.`pubdate` < "2026-03-11 12:57:07" AND n.`siteid` in (1)) GROUP BY `newsitemid` ORDER BY `match` DESC LIMIT 5
* SELECT n.`id` AS `_id`, n.`siteid` AS `_siteid`, n.`source` AS `_source`, n.`type` AS `_type`, n.`imageid` AS `_imageid`, n.`video` AS `_video`, n.`date` AS `_date_str`, n.`time` AS `_time_str`, n.`authorid` AS `_authorid`, n.`pubdate` AS `_pubdate_str`, n.`modified` AS `_modified_str` FROM `newsitems` AS n WHERE `id` IN (17,22,11,7,20)
* SELECT craftmanshipid AS `id`, SUM(CASE WHEN `tagid` = 165 THEN LEAST(357,`normalised`) WHEN `tagid` = 121 THEN LEAST(357,`normalised`) WHEN `tagid` = 156 THEN LEAST(36,`normalised`) WHEN `tagid` = 111 THEN LEAST(36,`normalised`) WHEN `tagid` = 110 THEN LEAST(36,`normalised`) WHEN `tagid` = 107 THEN LEAST(36,`normalised`) WHEN `tagid` = 76 THEN LEAST(36,`normalised`) WHEN `tagid` = 48 THEN LEAST(36,`normalised`) WHEN `tagid` = 41 THEN LEAST(36,`normalised`) WHEN `tagid` = 28 THEN LEAST(36,`normalised`) ELSE 0 END) AS `match` FROM `craftmanship_x_tags` WHERE `tagid` IN (165,121,156,111,110,107,76,48,41,28) AND `craftmanshipid` IN (SELECT c.`id` FROM `craftmanships` AS c INNER JOIN `craftmanship_content` AS ct ON (c.`id` = ct.`craftmanshipid` AND `lang` = "nl") WHERE ct.`title` <> "" AND c.`siteid` in (1)) GROUP BY `craftmanshipid` ORDER BY `match` DESC LIMIT 3
* SELECT c.`id` AS `_id`, c.`order` AS `_order`, c.`siteid` AS `_siteid`, c.`imageid` AS `_imageid`, c.`pubdate` AS `_pubdate_str`, c.`news_related` AS `_news_related`, c.`modified` AS `_modified_str`, c.`modified_byid` AS `_modified_byid` FROM `craftmanships` AS c WHERE `id` IN (9,15,12)
* SELECT projectid AS `id`, SUM(CASE WHEN `tagid` = 165 THEN LEAST(357,`normalised`) WHEN `tagid` = 121 THEN LEAST(357,`normalised`) WHEN `tagid` = 156 THEN LEAST(36,`normalised`) WHEN `tagid` = 111 THEN LEAST(36,`normalised`) WHEN `tagid` = 110 THEN LEAST(36,`normalised`) WHEN `tagid` = 107 THEN LEAST(36,`normalised`) WHEN `tagid` = 76 THEN LEAST(36,`normalised`) WHEN `tagid` = 48 THEN LEAST(36,`normalised`) WHEN `tagid` = 41 THEN LEAST(36,`normalised`) WHEN `tagid` = 28 THEN LEAST(36,`normalised`) ELSE 0 END) AS `match` FROM `project_x_tags` WHERE `tagid` IN (165,121,156,111,110,107,76,48,41,28) AND `projectid` IN (SELECT p.`id` FROM `projects` AS p INNER JOIN `project_content` AS c ON (p.`id` = c.`projectid` AND `lang` = "nl") WHERE p.`siteid` in (1) AND p.`id` NOT IN ((13)) AND p.`pubdate` < "2026-03-11 12:57:07" AND (p.`expiredate` IS NULL OR p.`expiredate` > "2026-03-11 12:57:07") AND NOT p.`engineering_project` AND c.`title` <> "") GROUP BY `projectid` ORDER BY `match` DESC LIMIT 3
* ABBR: SELECT p.`id` AS `_id`, p.`siteid` AS `_siteid`, p.`imageid` AS `_imageid`, p.`fileid` AS `_fileid`, p.`highlighted` AS `_highlighted`, p.`class` AS `_class`, p.`client` AS `_client`, p.`design_from` AS `_design_from_str`, p.`design_until` AS `_design_until_str`, p.`built_from` AS `_built_from_str`, p.`built_until` AS `_built_until_str`, p.`date_dsp_depth` AS `_date_dsp_depth`, p.`area` AS `_area`, p.`area_new` AS `_area_new`, p.`area_renovated` AS `_area_renovated`, p.`address` AS `_address`, p.`city` AS `_city`, p.`countrytag` AS `_countrytag`, p.`autolatlong` AS `_autolatlong`, p.`latlong` AS `_latlong`, p.`lat` AS `_lat`, p.`long` AS `_long`, p.`facebook_url` AS `_facebook_url`, p.`website_url` AS `_website_url`, p.`vimeo_url` AS `_vimeo_url`, p.`panorama` AS `_panorama`, p.`pubdate` AS `_pubdate_str`, p.`expiredate` AS `_expiredate_str`, p.`modified` AS `_modifi...
* SELECT t.`id` AS `_id`, t.`siteid` AS `_siteid`, t.`parentid` AS `_parentid`, t.`targetid` AS `_targetid`, t.`depth` AS `_depth`, t.`type` AS `_type`, t.`order` AS `_order`, t.`inmenu` AS `_inmenu`, t.`modified` AS `_modified_str` FROM `tree` AS t WHERE `type` IN (36) AND (t.`siteid` = 1 OR t.`siteid` IS NULL)
* SELECT t.`nodeid` AS `_nodeid`, t.`lang` AS `_lang`, t.`name` AS `_name`, t.`link` AS `_link`, t.`url` AS `_url` FROM `tree_content` AS t WHERE `nodeid` = 13 AND `lang` = "nl" LIMIT 1
* SELECT t.`id` AS `_id`, t.`siteid` AS `_siteid`, t.`parentid` AS `_parentid`, t.`targetid` AS `_targetid`, t.`depth` AS `_depth`, t.`type` AS `_type`, t.`order` AS `_order`, t.`inmenu` AS `_inmenu`, t.`modified` AS `_modified_str` FROM `tree` AS t WHERE `type` IN (38) AND (t.`siteid` = 1 OR t.`siteid` IS NULL)
* SELECT d.`hostname` AS `_hostname`, d.`lang` AS `_lang`, d.`siteid` AS `_siteid`, d.`locale` AS `_locale`, d.`UAcode` AS `_UAcode`, d.`title` AS `_title`, d.`enabled` AS `_enabled`, d.`default` AS `_default`, d.`priority` AS `_priority`, d.`subroot` AS `_subroot` FROM `domains` AS d WHERE `siteid` = 1 AND (`default` = 1 OR `enabled` = 1) ORDER BY `priority`, `hostname` ASC
* SELECT t.`tagid` AS `_tagid`, t.`lang` AS `_lang`, t.`text` AS `_text`, t.`slug` AS `_slug`, t.`description` AS `_description`, t.`content_html` AS `_content_html`, t.`content_src` AS `_content_src` FROM `tag_content` AS t WHERE `tagid` = 165 AND `lang` = "nl" LIMIT 1
* SELECT t.`tagid` AS `_tagid`, t.`lang` AS `_lang`, t.`text` AS `_text`, t.`slug` AS `_slug`, t.`description` AS `_description`, t.`content_html` AS `_content_html`, t.`content_src` AS `_content_src` FROM `tag_content` AS t WHERE `tagid` = 121 AND `lang` = "nl" LIMIT 1
* SELECT t.`tagid` AS `_tagid`, t.`lang` AS `_lang`, t.`text` AS `_text`, t.`slug` AS `_slug`, t.`description` AS `_description`, t.`content_html` AS `_content_html`, t.`content_src` AS `_content_src` FROM `tag_content` AS t WHERE `tagid` = 156 AND `lang` = "nl" LIMIT 1
* SELECT t.`tagid` AS `_tagid`, t.`lang` AS `_lang`, t.`text` AS `_text`, t.`slug` AS `_slug`, t.`description` AS `_description`, t.`content_html` AS `_content_html`, t.`content_src` AS `_content_src` FROM `tag_content` AS t WHERE `tagid` = 111 AND `lang` = "nl" LIMIT 1
* SELECT t.`tagid` AS `_tagid`, t.`lang` AS `_lang`, t.`text` AS `_text`, t.`slug` AS `_slug`, t.`description` AS `_description`, t.`content_html` AS `_content_html`, t.`content_src` AS `_content_src` FROM `tag_content` AS t WHERE `tagid` = 110 AND `lang` = "nl" LIMIT 1
* SELECT t.`tagid` AS `_tagid`, t.`lang` AS `_lang`, t.`text` AS `_text`, t.`slug` AS `_slug`, t.`description` AS `_description`, t.`content_html` AS `_content_html`, t.`content_src` AS `_content_src` FROM `tag_content` AS t WHERE `tagid` = 107 AND `lang` = "nl" LIMIT 1
* SELECT t.`tagid` AS `_tagid`, t.`lang` AS `_lang`, t.`text` AS `_text`, t.`slug` AS `_slug`, t.`description` AS `_description`, t.`content_html` AS `_content_html`, t.`content_src` AS `_content_src` FROM `tag_content` AS t WHERE `tagid` = 76 AND `lang` = "nl" LIMIT 1
* SELECT t.`tagid` AS `_tagid`, t.`lang` AS `_lang`, t.`text` AS `_text`, t.`slug` AS `_slug`, t.`description` AS `_description`, t.`content_html` AS `_content_html`, t.`content_src` AS `_content_src` FROM `tag_content` AS t WHERE `tagid` = 48 AND `lang` = "nl" LIMIT 1
* SELECT t.`tagid` AS `_tagid`, t.`lang` AS `_lang`, t.`text` AS `_text`, t.`slug` AS `_slug`, t.`description` AS `_description`, t.`content_html` AS `_content_html`, t.`content_src` AS `_content_src` FROM `tag_content` AS t WHERE `tagid` = 41 AND `lang` = "nl" LIMIT 1
* SELECT t.`tagid` AS `_tagid`, t.`lang` AS `_lang`, t.`text` AS `_text`, t.`slug` AS `_slug`, t.`description` AS `_description`, t.`content_html` AS `_content_html`, t.`content_src` AS `_content_src` FROM `tag_content` AS t WHERE `tagid` = 28 AND `lang` = "nl" LIMIT 1
* SELECT i.`id` AS `_id`, i.`type` AS `_type`, i.`basename` AS `_basename`, i.`width` AS `_width`, i.`height` AS `_height`, i.`size` AS `_size`, i.`hash` AS `_hash`, i.`panorama` AS `_panorama`, i.`added` AS `_added_str`, i.`modified` AS `_modified_str`, i.`added_by` AS `_added_by`, i.`protected` AS `_protected`, i.`crop_side` AS `_crop_side` FROM `images` AS i WHERE `id` = 386 LIMIT 1
* SELECT p.`id` AS `_id`, p.`projectid` AS `_projectid`, p.`lang` AS `_lang`, p.`fileid` AS `_fileid`, p.`title` AS `_title`, p.`modified` AS `_modified_str`, p.`modified_byid` AS `_modified_byid` FROM `project_attachments` AS p WHERE `projectid` = 13
* SELECT p.`id` AS `_id`, p.`projectid` AS `_projectid`, p.`imageid` AS `_imageid`, p.`imagemapid` AS `_imagemapid`, p.`video` AS `_video`, p.`order` AS `_order`, p.`modified` AS `_modified_str`, p.`modified_byid` AS `_modified_byid` FROM `project_media` AS p WHERE `projectid` = 13 ORDER BY `order` ASC
* SELECT a.`id` AS `_id`, a.`projectid` AS `_projectid`, a.`imageid` AS `_imageid`, a.`name` AS `_name`, a.`link` AS `_link` FROM `awards` AS a WHERE `projectid` = 13 ORDER BY `name` ASC
* SELECT t.`id` AS `_id`, t.`siteid` AS `_siteid`, t.`name` AS `_name`, t.`hidden_at_pj` AS `_hidden_at_pj` FROM `taggroups` AS t WHERE `id` = 14 LIMIT 1
* SELECT t.`id` AS `_id`, t.`siteid` AS `_siteid`, t.`name` AS `_name`, t.`hidden_at_pj` AS `_hidden_at_pj` FROM `taggroups` AS t WHERE `id` = 23 LIMIT 1
* SELECT t.`id` AS `_id`, t.`siteid` AS `_siteid`, t.`name` AS `_name`, t.`hidden_at_pj` AS `_hidden_at_pj` FROM `taggroups` AS t WHERE `id` = 17 LIMIT 1
* SELECT t.`id` AS `_id`, t.`siteid` AS `_siteid`, t.`name` AS `_name`, t.`hidden_at_pj` AS `_hidden_at_pj` FROM `taggroups` AS t WHERE `id` = 19 LIMIT 1
* SELECT t.`id` AS `_id`, t.`siteid` AS `_siteid`, t.`name` AS `_name`, t.`hidden_at_pj` AS `_hidden_at_pj` FROM `taggroups` AS t WHERE `id` = 11 LIMIT 1
* SELECT t.`id` AS `_id`, t.`siteid` AS `_siteid`, t.`name` AS `_name`, t.`hidden_at_pj` AS `_hidden_at_pj` FROM `taggroups` AS t WHERE `id` = 6 LIMIT 1
* SELECT t.`id` AS `_id`, t.`siteid` AS `_siteid`, t.`parentid` AS `_parentid`, t.`targetid` AS `_targetid`, t.`depth` AS `_depth`, t.`type` AS `_type`, t.`order` AS `_order`, t.`inmenu` AS `_inmenu`, t.`modified` AS `_modified_str` FROM `tree` AS t WHERE `type` IN (40) AND (t.`siteid` = 1 OR t.`siteid` IS NULL)
* SELECT t.`nodeid` AS `_nodeid`, t.`lang` AS `_lang`, t.`name` AS `_name`, t.`link` AS `_link`, t.`url` AS `_url` FROM `tree_content` AS t WHERE `nodeid` = 31 AND `lang` = "nl" LIMIT 1
* SELECT i.`id` AS `_id`, i.`siteid` AS `_siteid`, i.`name` AS `_name`, i.`imageid` AS `_imageid`, i.`modified` AS `_modified_str`, i.`modified_byid` AS `_modified_byid` FROM `imagemaps` AS i WHERE `id` = 2 LIMIT 1
* SELECT i.`id` AS `_id`, i.`mapid` AS `_mapid`, i.`imageid` AS `_imageid`, i.`left` AS `_left`, i.`top` AS `_top` FROM `imagemap_markers` AS i WHERE `mapid` = 2
* SELECT i.`imagemap_marker_id` AS `_imagemap_marker_id`, i.`lang` AS `_lang`, i.`title` AS `_title`, i.`link` AS `_link`, i.`linktext` AS `_linktext`, i.`description` AS `_description` FROM `imagemap_marker_content` AS i WHERE `imagemap_marker_id` = 15 AND `lang` = "nl" LIMIT 1
* SELECT i.`imagemap_marker_id` AS `_imagemap_marker_id`, i.`lang` AS `_lang`, i.`title` AS `_title`, i.`link` AS `_link`, i.`linktext` AS `_linktext`, i.`description` AS `_description` FROM `imagemap_marker_content` AS i WHERE `imagemap_marker_id` = 16 AND `lang` = "nl" LIMIT 1
* SELECT s.`name` AS `_name`, s.`label` AS `_label`, s.`form` AS `_form`, s.`class` AS `_class`, s.`roles` AS `_roles`, s.`universal` AS `_universal`, s.`data` AS `_data`, s.`modified` AS `_modified_str` FROM `settings` AS s WHERE `name` = "/" LIMIT 1
* SELECT `data` FROM `settings_data` WHERE `siteid` = 1 AND `name` = "/"
* SELECT t.`id` AS `_id`, t.`siteid` AS `_siteid`, t.`parentid` AS `_parentid`, t.`targetid` AS `_targetid`, t.`depth` AS `_depth`, t.`type` AS `_type`, t.`order` AS `_order`, t.`inmenu` AS `_inmenu`, t.`modified` AS `_modified_str` FROM `tree` AS t WHERE `type` IN (38) AND (t.`siteid` = 1 OR t.`siteid` IS NULL)
* SELECT p.`projectid` AS `_projectid`, p.`fileid` AS `_fileid`, p.`itl_facebook_url` AS `_itl_facebook_url`, p.`itl_website_url` AS `_itl_website_url`, p.`area_custom_label` AS `_area_custom_label`, p.`lang` AS `_lang`, p.`name` AS `_name`, p.`title` AS `_title`, p.`subtitle` AS `_subtitle`, p.`slug` AS `_slug`, p.`description` AS `_description`, p.`content_html` AS `_content_html`, p.`content_src` AS `_content_src` FROM `project_content` AS p WHERE `projectid` = 17 AND `lang` = "nl" LIMIT 1
* SELECT i.`id` AS `_id`, i.`type` AS `_type`, i.`basename` AS `_basename`, i.`width` AS `_width`, i.`height` AS `_height`, i.`size` AS `_size`, i.`hash` AS `_hash`, i.`panorama` AS `_panorama`, i.`added` AS `_added_str`, i.`modified` AS `_modified_str`, i.`added_by` AS `_added_by`, i.`protected` AS `_protected`, i.`crop_side` AS `_crop_side` FROM `images` AS i WHERE `id` = 260 LIMIT 1
* SELECT p.`projectid` AS `_projectid`, p.`fileid` AS `_fileid`, p.`itl_facebook_url` AS `_itl_facebook_url`, p.`itl_website_url` AS `_itl_website_url`, p.`area_custom_label` AS `_area_custom_label`, p.`lang` AS `_lang`, p.`name` AS `_name`, p.`title` AS `_title`, p.`subtitle` AS `_subtitle`, p.`slug` AS `_slug`, p.`description` AS `_description`, p.`content_html` AS `_content_html`, p.`content_src` AS `_content_src` FROM `project_content` AS p WHERE `projectid` = 27 AND `lang` = "nl" LIMIT 1
* SELECT i.`id` AS `_id`, i.`type` AS `_type`, i.`basename` AS `_basename`, i.`width` AS `_width`, i.`height` AS `_height`, i.`size` AS `_size`, i.`hash` AS `_hash`, i.`panorama` AS `_panorama`, i.`added` AS `_added_str`, i.`modified` AS `_modified_str`, i.`added_by` AS `_added_by`, i.`protected` AS `_protected`, i.`crop_side` AS `_crop_side` FROM `images` AS i WHERE `id` = 349 LIMIT 1
* SELECT p.`projectid` AS `_projectid`, p.`fileid` AS `_fileid`, p.`itl_facebook_url` AS `_itl_facebook_url`, p.`itl_website_url` AS `_itl_website_url`, p.`area_custom_label` AS `_area_custom_label`, p.`lang` AS `_lang`, p.`name` AS `_name`, p.`title` AS `_title`, p.`subtitle` AS `_subtitle`, p.`slug` AS `_slug`, p.`description` AS `_description`, p.`content_html` AS `_content_html`, p.`content_src` AS `_content_src` FROM `project_content` AS p WHERE `projectid` = 40 AND `lang` = "nl" LIMIT 1
* SELECT i.`id` AS `_id`, i.`type` AS `_type`, i.`basename` AS `_basename`, i.`width` AS `_width`, i.`height` AS `_height`, i.`size` AS `_size`, i.`hash` AS `_hash`, i.`panorama` AS `_panorama`, i.`added` AS `_added_str`, i.`modified` AS `_modified_str`, i.`added_by` AS `_added_by`, i.`protected` AS `_protected`, i.`crop_side` AS `_crop_side` FROM `images` AS i WHERE `id` = 494 LIMIT 1
* SELECT t.`id` AS `_id`, t.`siteid` AS `_siteid`, t.`parentid` AS `_parentid`, t.`targetid` AS `_targetid`, t.`depth` AS `_depth`, t.`type` AS `_type`, t.`order` AS `_order`, t.`inmenu` AS `_inmenu`, t.`modified` AS `_modified_str` FROM `tree` AS t WHERE `type` IN (35) AND (t.`siteid` = 1 OR t.`siteid` IS NULL)
* SELECT t.`nodeid` AS `_nodeid`, t.`lang` AS `_lang`, t.`name` AS `_name`, t.`link` AS `_link`, t.`url` AS `_url` FROM `tree_content` AS t WHERE `nodeid` = 21 AND `lang` = "nl" LIMIT 1
* SELECT c.`craftmanshipid` AS `_craftmanshipid`, c.`lang` AS `_lang`, c.`title` AS `_title`, c.`subtitle` AS `_subtitle`, c.`slug` AS `_slug`, c.`description` AS `_description`, c.`content_html` AS `_content_html`, c.`content_src` AS `_content_src` FROM `craftmanship_content` AS c WHERE `craftmanshipid` = 9 AND `lang` = "nl" LIMIT 1
* SELECT t.`id` AS `_id`, t.`siteid` AS `_siteid`, t.`parentid` AS `_parentid`, t.`targetid` AS `_targetid`, t.`depth` AS `_depth`, t.`type` AS `_type`, t.`order` AS `_order`, t.`inmenu` AS `_inmenu`, t.`modified` AS `_modified_str` FROM `tree` AS t WHERE `type` IN (35) AND (t.`siteid` = 1 OR t.`siteid` IS NULL)
* SELECT c.`craftmanshipid` AS `_craftmanshipid`, c.`lang` AS `_lang`, c.`title` AS `_title`, c.`subtitle` AS `_subtitle`, c.`slug` AS `_slug`, c.`description` AS `_description`, c.`content_html` AS `_content_html`, c.`content_src` AS `_content_src` FROM `craftmanship_content` AS c WHERE `craftmanshipid` = 15 AND `lang` = "nl" LIMIT 1
* SELECT c.`craftmanshipid` AS `_craftmanshipid`, c.`lang` AS `_lang`, c.`title` AS `_title`, c.`subtitle` AS `_subtitle`, c.`slug` AS `_slug`, c.`description` AS `_description`, c.`content_html` AS `_content_html`, c.`content_src` AS `_content_src` FROM `craftmanship_content` AS c WHERE `craftmanshipid` = 12 AND `lang` = "nl" LIMIT 1
* SELECT t.`id` AS `_id`, t.`siteid` AS `_siteid`, t.`parentid` AS `_parentid`, t.`targetid` AS `_targetid`, t.`depth` AS `_depth`, t.`type` AS `_type`, t.`order` AS `_order`, t.`inmenu` AS `_inmenu`, t.`modified` AS `_modified_str` FROM `tree` AS t WHERE `type` IN (32) AND (t.`siteid` = 1 OR t.`siteid` IS NULL)
* SELECT t.`nodeid` AS `_nodeid`, t.`lang` AS `_lang`, t.`name` AS `_name`, t.`link` AS `_link`, t.`url` AS `_url` FROM `tree_content` AS t WHERE `nodeid` = 11 AND `lang` = "nl" LIMIT 1
* SELECT t.`id` AS `_id`, t.`siteid` AS `_siteid`, t.`parentid` AS `_parentid`, t.`targetid` AS `_targetid`, t.`depth` AS `_depth`, t.`type` AS `_type`, t.`order` AS `_order`, t.`inmenu` AS `_inmenu`, t.`modified` AS `_modified_str` FROM `tree` AS t WHERE `type` IN (32) AND (t.`siteid` = 1 OR t.`siteid` IS NULL)
* SELECT n.`newsitemid` AS `_newsitemid`, n.`lang` AS `_lang`, n.`title` AS `_title`, n.`slug` AS `_slug`, n.`description` AS `_description`, n.`content_html` AS `_content_html`, n.`content_src` AS `_content_src` FROM `newsitem_content` AS n WHERE `newsitemid` = 17 AND `lang` = "nl" LIMIT 1
* SELECT i.`id` AS `_id`, i.`type` AS `_type`, i.`basename` AS `_basename`, i.`width` AS `_width`, i.`height` AS `_height`, i.`size` AS `_size`, i.`hash` AS `_hash`, i.`panorama` AS `_panorama`, i.`added` AS `_added_str`, i.`modified` AS `_modified_str`, i.`added_by` AS `_added_by`, i.`protected` AS `_protected`, i.`crop_side` AS `_crop_side` FROM `images` AS i WHERE `id` = 184 LIMIT 1
* SELECT n.`newsitemid` AS `_newsitemid`, n.`lang` AS `_lang`, n.`title` AS `_title`, n.`slug` AS `_slug`, n.`description` AS `_description`, n.`content_html` AS `_content_html`, n.`content_src` AS `_content_src` FROM `newsitem_content` AS n WHERE `newsitemid` = 22 AND `lang` = "nl" LIMIT 1
* SELECT i.`id` AS `_id`, i.`type` AS `_type`, i.`basename` AS `_basename`, i.`width` AS `_width`, i.`height` AS `_height`, i.`size` AS `_size`, i.`hash` AS `_hash`, i.`panorama` AS `_panorama`, i.`added` AS `_added_str`, i.`modified` AS `_modified_str`, i.`added_by` AS `_added_by`, i.`protected` AS `_protected`, i.`crop_side` AS `_crop_side` FROM `images` AS i WHERE `id` = 210 LIMIT 1
* SELECT n.`newsitemid` AS `_newsitemid`, n.`lang` AS `_lang`, n.`title` AS `_title`, n.`slug` AS `_slug`, n.`description` AS `_description`, n.`content_html` AS `_content_html`, n.`content_src` AS `_content_src` FROM `newsitem_content` AS n WHERE `newsitemid` = 11 AND `lang` = "nl" LIMIT 1
* SELECT i.`id` AS `_id`, i.`type` AS `_type`, i.`basename` AS `_basename`, i.`width` AS `_width`, i.`height` AS `_height`, i.`size` AS `_size`, i.`hash` AS `_hash`, i.`panorama` AS `_panorama`, i.`added` AS `_added_str`, i.`modified` AS `_modified_str`, i.`added_by` AS `_added_by`, i.`protected` AS `_protected`, i.`crop_side` AS `_crop_side` FROM `images` AS i WHERE `id` = 180 LIMIT 1
* SELECT n.`newsitemid` AS `_newsitemid`, n.`lang` AS `_lang`, n.`title` AS `_title`, n.`slug` AS `_slug`, n.`description` AS `_description`, n.`content_html` AS `_content_html`, n.`content_src` AS `_content_src` FROM `newsitem_content` AS n WHERE `newsitemid` = 7 AND `lang` = "nl" LIMIT 1
* SELECT i.`id` AS `_id`, i.`type` AS `_type`, i.`basename` AS `_basename`, i.`width` AS `_width`, i.`height` AS `_height`, i.`size` AS `_size`, i.`hash` AS `_hash`, i.`panorama` AS `_panorama`, i.`added` AS `_added_str`, i.`modified` AS `_modified_str`, i.`added_by` AS `_added_by`, i.`protected` AS `_protected`, i.`crop_side` AS `_crop_side` FROM `images` AS i WHERE `id` = 95 LIMIT 1
* SELECT n.`newsitemid` AS `_newsitemid`, n.`lang` AS `_lang`, n.`title` AS `_title`, n.`slug` AS `_slug`, n.`description` AS `_description`, n.`content_html` AS `_content_html`, n.`content_src` AS `_content_src` FROM `newsitem_content` AS n WHERE `newsitemid` = 20 AND `lang` = "nl" LIMIT 1
* SELECT i.`id` AS `_id`, i.`type` AS `_type`, i.`basename` AS `_basename`, i.`width` AS `_width`, i.`height` AS `_height`, i.`size` AS `_size`, i.`hash` AS `_hash`, i.`panorama` AS `_panorama`, i.`added` AS `_added_str`, i.`modified` AS `_modified_str`, i.`added_by` AS `_added_by`, i.`protected` AS `_protected`, i.`crop_side` AS `_crop_side` FROM `images` AS i WHERE `id` = 208 LIMIT 1
* SELECT t.`id` AS `_id`, t.`siteid` AS `_siteid`, t.`parentid` AS `_parentid`, t.`targetid` AS `_targetid`, t.`depth` AS `_depth`, t.`type` AS `_type`, t.`order` AS `_order`, t.`inmenu` AS `_inmenu`, t.`modified` AS `_modified_str` FROM `tree` AS t LEFT JOIN `pages` AS p ON t.`id` = p.`id` INNER JOIN `tree_content` AS c ON (t.`id` = c.`nodeid` AND c.`lang` = "nl") WHERE `type` IN (1,32,33,35,38,39,44) AND (`siteid` IS NULL OR `siteid` in (1,1)) AND (p.`id` IS NULL OR ( p.`pubdate` < NOW() AND (p.`expiredate` IS NULL OR p.`expiredate` > NOW()) ) ) AND `depth` <= 2 AND `inmenu` AND c.name <> "" ORDER BY `depth` ASC,`order` ASC
* SELECT t.`nodeid` AS `_nodeid`, t.`lang` AS `_lang`, t.`name` AS `_name`, t.`link` AS `_link`, t.`url` AS `_url` FROM `tree_content` AS t WHERE 1=1 AND `lang` = "nl" AND `nodeid` IN (34,21,20,11,22,27,28,23,24,29,25,30,26)
* SELECT t.`id` AS `_id`, t.`siteid` AS `_siteid`, t.`parentid` AS `_parentid`, t.`targetid` AS `_targetid`, t.`depth` AS `_depth`, t.`type` AS `_type`, t.`order` AS `_order`, t.`inmenu` AS `_inmenu`, t.`modified` AS `_modified_str` FROM `tree` AS t WHERE `type` IN (34) AND (t.`siteid` = 1 OR t.`siteid` IS NULL)
* SELECT t.`id` AS `_id`, t.`siteid` AS `_siteid`, t.`parentid` AS `_parentid`, t.`targetid` AS `_targetid`, t.`depth` AS `_depth`, t.`type` AS `_type`, t.`order` AS `_order`, t.`inmenu` AS `_inmenu`, t.`modified` AS `_modified_str` FROM `tree` AS t WHERE `type` IN (38) AND (t.`siteid` = 1 OR t.`siteid` IS NULL)
* SELECT t.`nodeid` AS `_nodeid`, t.`lang` AS `_lang`, t.`name` AS `_name`, t.`link` AS `_link`, t.`url` AS `_url` FROM `tree_content` AS t WHERE `nodeid` = 20 AND `lang` = "en" LIMIT 1
* SELECT p.`id` AS `_id`, p.`imageid` AS `_imageid`, p.`pubdate` AS `_pubdate_str`, p.`highlighted` AS `_highlighted`, p.`class` AS `_class`, p.`template` AS `_template`, p.`expiredate` AS `_expiredate_str`, p.`modified` AS `_modified_str`, p.`modified_byid` AS `_modified_byid` FROM `pages` AS p INNER JOIN `page_content` AS c ON (c.`staticpageid` = p.`id` AND c.`lang` = "nl") INNER JOIN `tree` AS tr ON (tr.`id` = p.`id`) WHERE c.`title` <> "" AND p.`pubdate` < "2026-03-11 12:57:07" AND (p.`expiredate` IS NULL OR p.`expiredate` > "2026-03-11 12:57:07") AND p.`template` = "ctpage" AND tr.`siteid` IN (1)
* SELECT `data` FROM `settings_data` WHERE `siteid` = 1 AND `name` = "social"
* SELECT t.`id` AS `_id`, t.`siteid` AS `_siteid`, t.`parentid` AS `_parentid`, t.`targetid` AS `_targetid`, t.`depth` AS `_depth`, t.`type` AS `_type`, t.`order` AS `_order`, t.`inmenu` AS `_inmenu`, t.`modified` AS `_modified_str` FROM `tree` AS t WHERE `id` = 32 AND (t.`siteid` = 1 OR t.`siteid` IS NULL) LIMIT 1
* SELECT t.`nodeid` AS `_nodeid`, t.`lang` AS `_lang`, t.`name` AS `_name`, t.`link` AS `_link`, t.`url` AS `_url` FROM `tree_content` AS t WHERE `nodeid` = 32 AND `lang` = "nl" LIMIT 1
* SELECT t.`nodeid` AS `_nodeid`, t.`lang` AS `_lang`, t.`name` AS `_name`, t.`link` AS `_link`, t.`url` AS `_url` FROM `tree_content` AS t WHERE `nodeid` = 10 AND `lang` = "nl" LIMIT 1
#> INCLUDES: 354 files
#> REQUEST
Processing time : 0.048475980758667
Request method : GET
HTTP POST : 0 vars
HTTP GET : 0 vars
HTTP COOKIE :0 vars